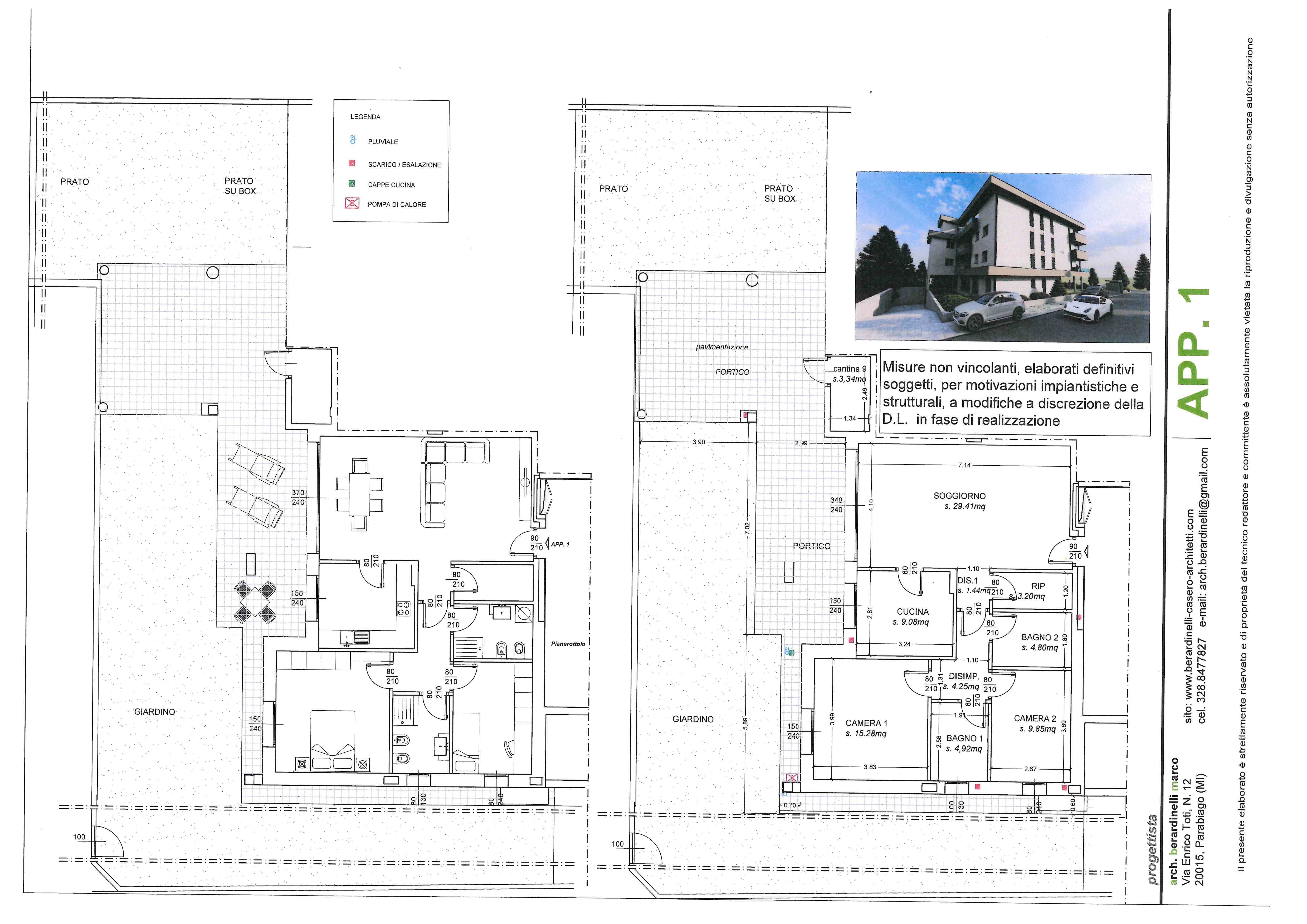
APPARTAMENTO 4 LOCALI
Vendita € 380.000,00
APPARTAMENTI DI NUOVA COSTRUZIONE in classe “a3”
Meda in via Francesco Saverio angolo via Santa Caterina da Siena, in posizione comoda per tutti i servizi, nasce un edificio in fase di costruzione, con destinazione residenziale.
Sono disponibili appartamenti di 3/4 locali doppi servizi al piano Terreno.
Gli immobili sono dotati di giardini, curati nei minimi dettagli, con finiture e materiali di altissima qualità. Le grandi superfici finestrate e gli spazi liberi consentono alla luce naturale di illuminare tutti gli spazi. Le finiture comprendono riscaldamento e raffrescamento a pavimento Autonomi di ultima generazione, impianto di deumidificazione, ventilazione meccanica, infissi basso-emissivi, pavimentazione in parquet e in gres, sanitari sospesi e impianto videocitofono. L’alta classe energetica permette di ottimizzare la qualità della vita all’interno degli appartamenti, riducendo i consumi e le spese. Tutto questo grazie alla combinazione di materiali, sistemi energetici d’avanguardia e utilizzo di energia pulita che abbattono le emissioni di CO2.
Sono previsti un ingresso pedonale ed un ingresso carraio direttamente dalla via Saverio. La residenza prevede autorimesse al piano Interrato.
La consegna delle unità abitative è prevista per fine estate 2027.
Esempio Prezzo Appartamento “2” €uro 380.000. Possibilità a parte di autorimesse doppie.
Per info e appuntamenti potete contattarci al numero 0362.72191 oppure scriverci a info@imcosrl.it










